Neubau Marti AG Holzbau, Matt
2019
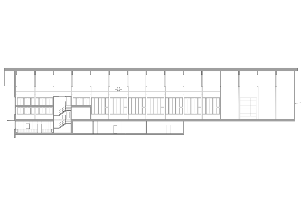
Der Ersatzneubau ersetzt eine im Herbst 2017 niedergebrannte Zimmerei an alter Stelle. Die neue Zimmerei orientiert sich stark am Vorgängerbau, umfasst aber zusätzliche Gebäudeteile (Einstellhalle, Spritzraum, Lager- und Personalräume).
Die Fassade ist klassisch dreiteilig: Ein Sockel aus massivem Beton, ein umlaufendes Fensterband, ein oberer Abschluss mit einem Fries aus Holz.
Einem Holzbaubetrieb angemessen präsentiert sich auch die neue Halle in einem Kleid aus Holz aus sägeroher und unbehandelter Fichte. Die Zimmermannsarbeit aus rohem Tannenholz steht in einem Wechselspiel zur Feinteiligkeit der Glasfassade.
Die Personal-, Büro- und Sitzungsräume sind in im Innern in unterschiedlichen Hölzern ausgeschlagen (Fichte, Eiche, Lärche).
Eine Photovoltaik-Anlage (185 kWp) dient zur Stromproduktion für das gesamte Areal, geheizt wird mit eigenen Holzabfällen.
ARGE Marti AG Architekten, Matt und AMJGS Architektur AG, Glarus und Zürich
Fotos: Martin Stollenwerk, Zürich
















Neubau Marti AG Holzbau, Matt
2019
Der Ersatzneubau ersetzt eine im Herbst 2017 niedergebrannte Zimmerei an alter Stelle. Die neue Zimmerei orientiert sich stark am Vorgängerbau, umfasst aber zusätzliche Gebäudeteile (Einstellhalle, Spritzraum, Lager- und Personalräume).
Die Fassade ist klassisch dreiteilig: Ein Sockel aus massivem Beton, ein umlaufendes Fensterband, ein oberer Abschluss mit einem Fries aus Holz.
Einem Holzbaubetrieb angemessen präsentiert sich auch die neue Halle in einem Kleid aus Holz aus sägeroher und unbehandelter Fichte. Die Zimmermannsarbeit aus rohem Tannenholz steht in einem Wechselspiel zur Feinteiligkeit der Glasfassade.
Die Personal-, Büro- und Sitzungsräume sind in im Innern in unterschiedlichen Hölzern ausgeschlagen (Fichte, Eiche, Lärche).
Eine Photovoltaik-Anlage (185 kWp) dient zur Stromproduktion für das gesamte Areal, geheizt wird mit eigenen Holzabfällen.
ARGE Marti AG Architekten, Matt und AMJGS Architektur AG, Glarus und Zürich
Fotos: Martin Stollenwerk, Zürich