Umbau Wohnhaus, Netstal
2022
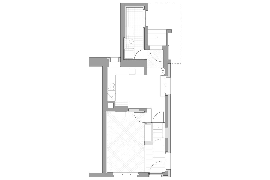
Eine Kleinstaufgabe.
Zwei pensionierte Brüder wollen die schmale Haushälfte ihres Elternhauses sanieren, die Eingriffe sollen sich aber auf ein Minimum beschränken.
Die Stube wird im Erdgeschoss bis zur Fassade hin geöffnet und damit das Obergeschoss mit einer neuen Treppe einfacher erschlossen, Bad und Küche werden ersetzt.
Alle restlichen Eingriffe sind Auffrischungen der (teils schönen) Oberflächen reduziert.
Die bescheidene und kleine Wohnung erhält durch die getroffenen Massnahmen auf einfache Art mehr Weite, der Charakter der Arbeiterwohnung bleibt aber insgesamt erhalten.
Fassade, Dach und Decke über Untergeschoss werden energetisch saniert. Der Kachelofen wird um eine Luft-Wärmepumpenheizung im Untergeschoss ergänzt.
Bauherr: Privat


Umbau Wohnhaus, Netstal
2022
Eine Kleinstaufgabe.
Zwei pensionierte Brüder wollen die schmale Haushälfte ihres Elternhauses sanieren, die Eingriffe sollen sich aber auf ein Minimum beschränken.
Die Stube wird im Erdgeschoss bis zur Fassade hin geöffnet und damit das Obergeschoss mit einer neuen Treppe einfacher erschlossen, Bad und Küche werden ersetzt.
Alle restlichen Eingriffe sind Auffrischungen der (teils schönen) Oberflächen reduziert.
Die bescheidene und kleine Wohnung erhält durch die getroffenen Massnahmen auf einfache Art mehr Weite, der Charakter der Arbeiterwohnung bleibt aber insgesamt erhalten.
Fassade, Dach und Decke über Untergeschoss werden energetisch saniert. Der Kachelofen wird um eine Luft-Wärmepumpenheizung im Untergeschoss ergänzt.
Bauherr: Privat